空室情報
2階E号室、2階G号室の2部屋が空室になる予定です。
E号室…6.0畳、南西向き、家賃53,000円
E号室…6.0畳、南東向き、家賃53,000円
---------------------------------------------------------------------------------------------------------------
2階―E号室
間取り…6.0畳 窓…南西向き 家賃…53,000円

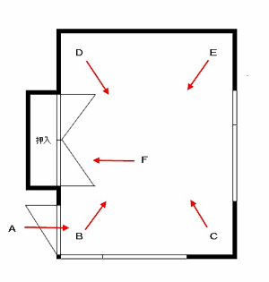
下の写真は、A,B.C.D,E,Fから矢印方向に撮った写真です。

Aから見た写真

Bから見た写真

Cから見た写真
Dから見た写真

Eから見た写真

Fから見た写真その1

Fから見た写真その2
---------------------------------------------------------------------------------------------------------------
2階―G号室
間取り...6畳 窓...南東向き 家賃...53,000円

下の写真は、A.B.C.D.E.Fから矢印方向に撮った写真です。

Aから見た写真

Bから見た写真

Cから見た写真
Dから見た写真

Eから見た写真

Fから見た写真その1

Fから見た写真その2